Life Safety Plan - Print Update

Life Safety Plan - Print Update

Life Safety Drawings

Life Safety Plan - Print Update

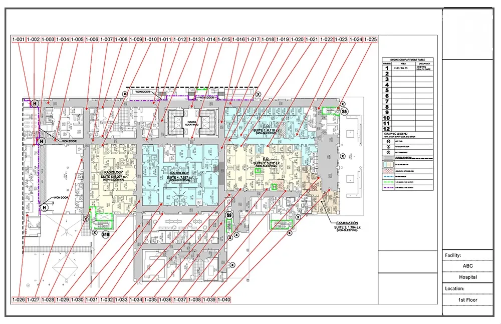
Facilities Management Solutions (FMS) offers expert Life Safety Plan Drawing services, ensuring comprehensive compliance and safety for your facility. Our process begins with a detailed site assessment, where our team of professionals meticulously examines the layout and existing life safety features, including fire alarms, sprinkler systems, emergency exits, and more. This assessment is conducted in strict accordance with key regulations such as NFPA 101 (Life Safety Code), The Joint Commission standards, and other applicable codes. Our thorough approach ensures that all critical safety elements are identified and accurately documented, providing a solid foundation for developing detailed life safety plans.
The resulting Life Safety Plans include comprehensive mapping of the facility, clearly outlining all essential safety features and routes. Our plans incorporate a code summary and legends, offering a clear interpretation of regulatory requirements and compliance status. We detail existing life safety features, ensuring they adhere to the latest standards and regulations. This meticulous documentation serves as a critical tool for facility management, aiding in emergency preparedness, regulatory inspections, and overall safety management.

View Service Sheet